波士顿地产网 - Winter Hill 多家庭 4房 1,856尺 售$969,000
免費刊租    繁體中文 简体中文
   首 页 买 房 卖 房 租 房 房屋贷款 热门地区    登 入 | 加入會員   
34-R CLYDE STREET, Winter Hill, MA 02145
$969,000
热卖中
房屋类型 多家庭
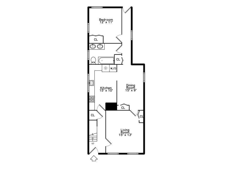
卧室 4
全浴 2
半浴 0
室内面积 1,856 平方尺
建筑年份 1850
地皮面积 3,125 平方尺
地税 $8,779 / 年
MLS 73198339
Wonderful opportunity awaits in one of Somerville's most sought after neighborhoods .Only two blocks from T station & superbly located between Davis, Ball & Magoun SQ's and a stone's throw to the bike path ! A turnkey lovingly cared for and tastefully updated 2 family presented with sitting Tenants under lease. Updated kitchens with granite counters and S/S, nicely appointed bathrooms, in-unit laundries ,gleaming hardwood floors and nicely set back from street with the generous front yard it creates a feeling of being in your own oasis. Exterior painted 2022. This fine property offers so many possibilities as an investment, a potential grand single family, as two future condos, future home with rental income unit, etc, all with the possibility of expansion potential- buyers/buyers' agent to do their own due diligence .While in long term ownership Sellers have never lived there so property offered as is, where is.

房屋规格
  • 类型: 多家庭
  • 型态: 2家庭
  • 楼层: 2
  • 地库: 可出入, 内部连通
  • 车库: 0 车位
  • 停车位: 0 车位

室内设计
  • 总间隔: 6
  • 卧室: 4
  • 全浴: 2
  • 半浴: 0

美國房地產,紐英倫房地產, 麻省房地產,波士頓房地產,哈佛房地產,波士頓租房, 波士頓買房, 波士頓大學校區房
Listed by Kevin Knightly from RE/MAX Destiny. The property listing data and information, or the Images, set forth herein were provided to MLS Property Information Network, Inc. from thirdparty sources, including sellers, lessors, landlordsand public records, and were compiled by MLS Property Information Network, Inc. The property listing data and information, and the Images, are for the personal, non-commercial use of consumers having a good faith interest in purchasing, leasing or renting listed properties of the type displayed to them and may not be used for any purpose other than to identify prospective properties which such consumers may have a good faith interest in purchasing, leasing or renting. MLS Property Information Network, Inc. and its subscribers disclaim any and all representations and warranties as to the accuracy of the property listing data and information, or as to the accuracy of any of the Images, set forth herein.






服务条款 | 保障隐私权声明 | 常见问题及说明 | 广告服务 | 联系我们
Copyright © 2026 FindHomeBoston.com; All Rights Reserved.