波士頓地產網 - South Boston 多家庭 9房 3,087尺 售$2,000,000
免費刊租    繁體中文 简体中文
   首 頁 買 房 賣 房 租 房 房屋貸款 熱門地區    登 入 | 加入會員   
891-893 E Broadway, South Boston, MA 02127
$2,000,000
熱賣中
房屋類型 多家庭
臥室 9
全浴 3
半浴 0
室内面積 3,087 平方尺
建築年份 1900
地皮面積 3,484 平方尺
地稅 $18,238 / 年
MLS 73199434
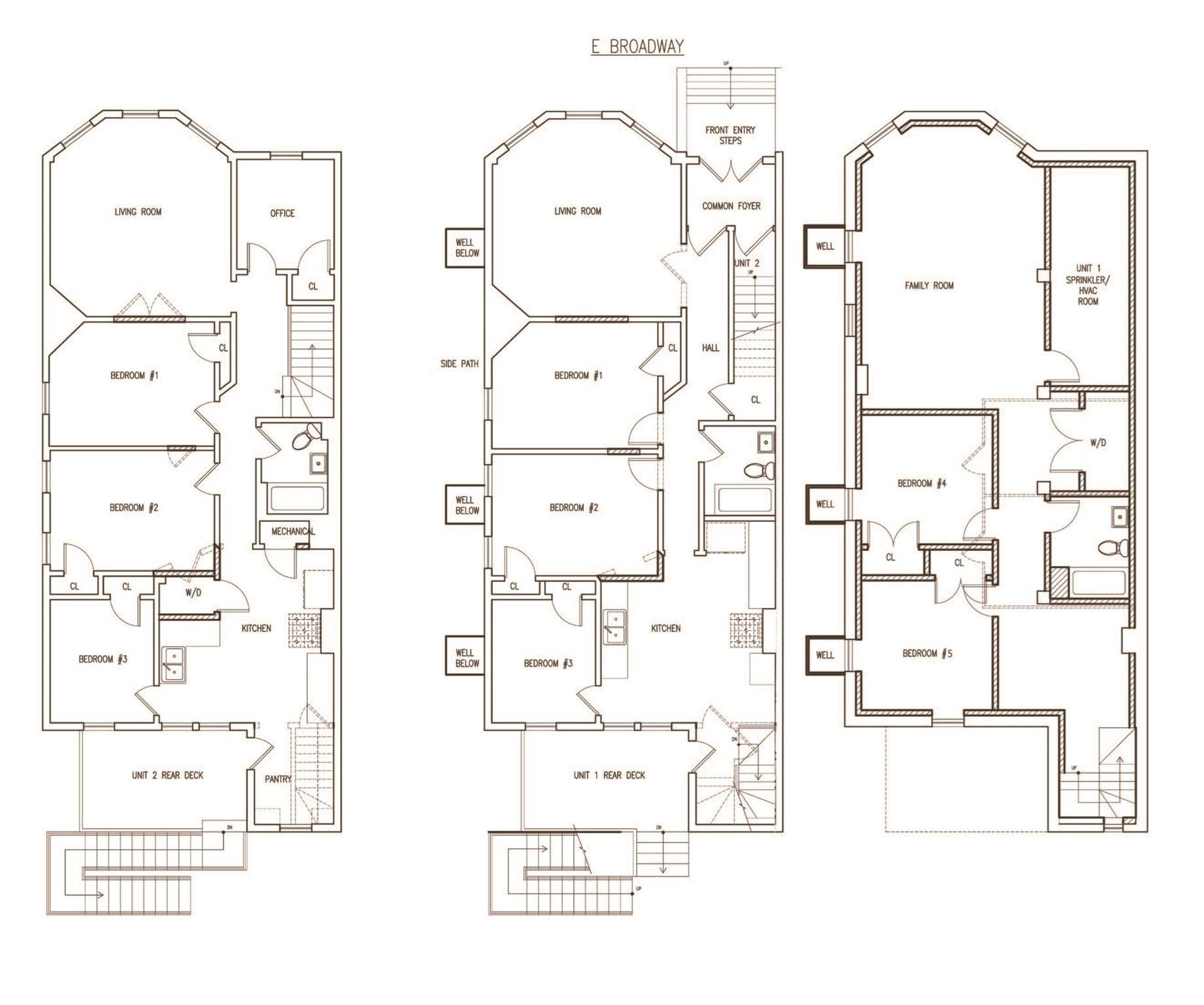
The Property consists of a 2-story building containing 2 residential units comprised of (1) 5-Bedroom/2-Bathroom duplex unit and (1) 3.5-Bedroom/1-Bathroom unit. The extensively renovated, direct entry units feature condo quality finishes including brand new kitchens with quartz counter tops, white shaker cabinets, stainless-steel appliances, in-unit laundry, hardwood and vinyl plank flooring, tile kitchens and bathrooms. Both units also have private rear decks in addition to a large backyard. The property features a newly painted exterior, new electrical service featuring 100amp service to each unit, Navien on-demand tankless hot water as well as brand new HVAC systems and new windows. Additionally, the finished basement features a new sprinkler system. The desirable building is individually metered for heat, cooling, hot water and electricity which the tenants pay directly. The subject property is ideal for a potential buyer looking for income growth and investment returns.

房屋規格
  • 類型: 多家庭
  • 型態: 2家庭
  • 樓層: 2
  • 地庫: 全, 全部完成
  • 車庫: 0 車位
  • 停車位: 0 車位

室内設計
  • 總間隔: 13
  • 臥室: 9
  • 全浴: 3
  • 半浴: 0

美國房地產,紐英倫房地產, 麻省房地產,波士頓房地產,哈佛房地產,波士頓租房, 波士頓買房, 波士頓大學校區房
Listed by John Pentore from Horvath & Tremblay. The property listing data and information, or the Images, set forth herein were provided to MLS Property Information Network, Inc. from thirdparty sources, including sellers, lessors, landlordsand public records, and were compiled by MLS Property Information Network, Inc. The property listing data and information, and the Images, are for the personal, non-commercial use of consumers having a good faith interest in purchasing, leasing or renting listed properties of the type displayed to them and may not be used for any purpose other than to identify prospective properties which such consumers may have a good faith interest in purchasing, leasing or renting. MLS Property Information Network, Inc. and its subscribers disclaim any and all representations and warranties as to the accuracy of the property listing data and information, or as to the accuracy of any of the Images, set forth herein.






服務條款 | 保障隱私權聲明 | 常見問題及説明 | 廣告服務 | 聯係我們
Copyright © 2026 FindHomeBoston.com; All Rights Reserved.