波士頓地產網 - Somerville 單家庭 4房 1,488尺 售$725,000
免費刊租    繁體中文 简体中文
   首 頁 買 房 賣 房 租 房 房屋貸款 熱門地區    登 入 | 加入會員   
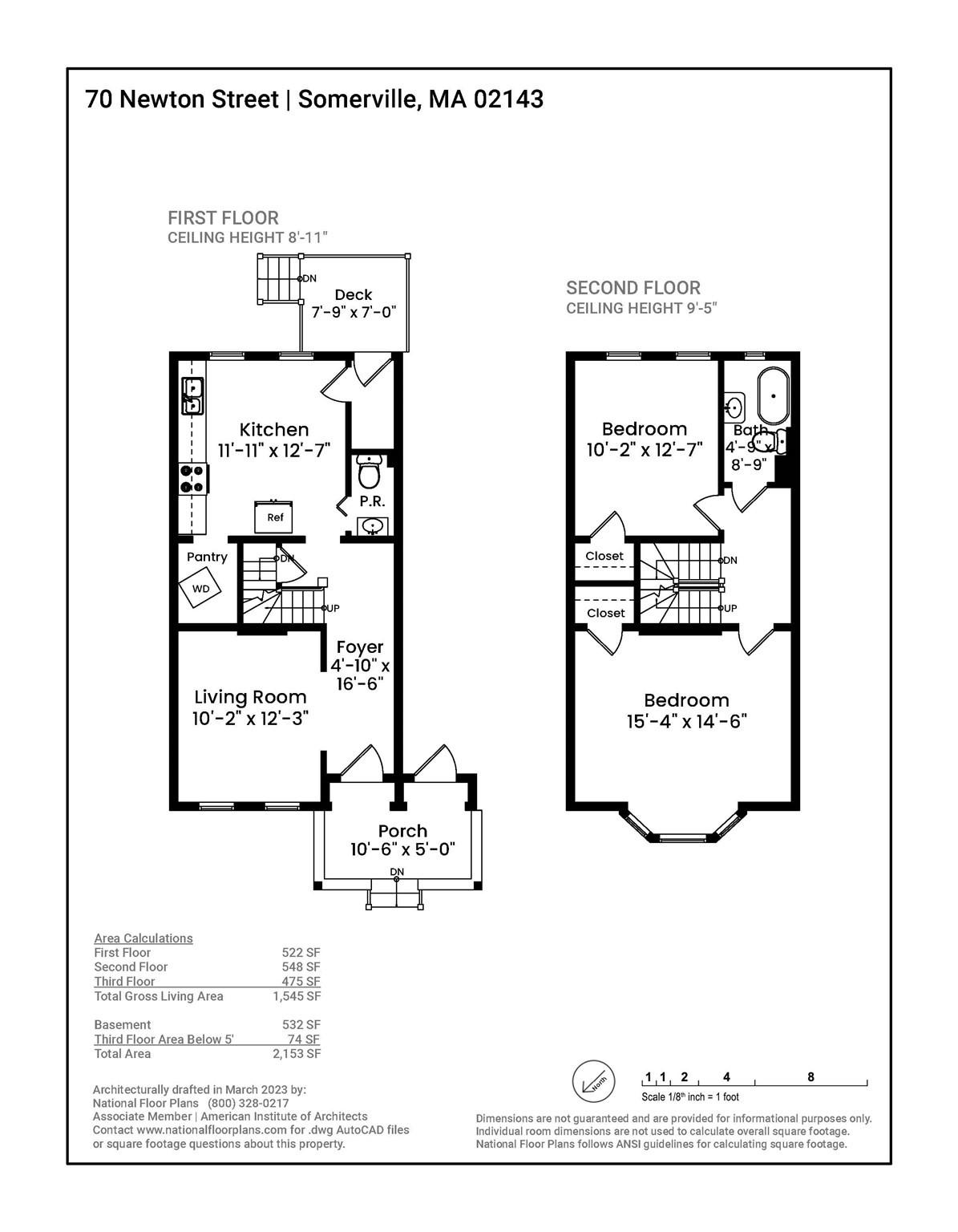
70 NEWTON STREET, Somerville, MA 02143
$725,000
熱賣中
房屋類型 單家庭
臥室 4
全浴 1
半浴 1
室内面積 1,488 平方尺
地皮面積 1,311 平方尺
建築年份 1915
地稅 $6,405 / 年
MLS 73197062
PRICE IMPROVEMENT..WOW! What an AMAZING location! This attached, fee simple, single family home is located close to the new Union Square T stop and just around the corner from both Union Square and Inman Square. No need for a car. Enjoy easy access to coffee shops, restaurants and great entertainment almost at your doorstep! This four bedroom, 1.5 bath home offers almost 1500 sq. ft. of interior space AND a generous private yard. Featuring lovely high ceilings and period moldings its just waiting for you to add some love and attention to make it your forever home! With a Walk Score of 96 and a Bike Score of 100 its location is considered a Walker’s Paradise! Offered for $725,000. Welcome home to 70 Newton Street!

房屋規格
  • 類型: 單家庭
  • 型態: 連體式
  • 建築風格:
  • 地庫:
  • 車庫: (0 車位)
  • 停車位: 街許可證

室内設計
  • 總間隔: 6
  • 主人房浴室: ()
  • 臥室: 4
  • 全浴: 1
  • 半浴: 1



建築構造
  • 架構:
  • 外部: 圍欄式庭院
  • 内部:
  • 屋頂:
  • 地面: 木,瓷磚,塑膠
  • 暖氣: 天然氣
  • 空調: 窗口空調
  • 電:

電器設備
  • 乾衣機
  • 冰箱
  • 洗衣機
  • 爐灶

美國房地產,紐英倫房地產, 麻省房地產,波士頓房地產,哈佛房地產,波士頓租房, 波士頓買房, 波士頓大學校區房
Listed by Catherine Luther from Channing Real Estate. The property listing data and information, or the Images, set forth herein were provided to MLS Property Information Network, Inc. from thirdparty sources, including sellers, lessors, landlordsand public records, and were compiled by MLS Property Information Network, Inc. The property listing data and information, and the Images, are for the personal, non-commercial use of consumers having a good faith interest in purchasing, leasing or renting listed properties of the type displayed to them and may not be used for any purpose other than to identify prospective properties which such consumers may have a good faith interest in purchasing, leasing or renting. MLS Property Information Network, Inc. and its subscribers disclaim any and all representations and warranties as to the accuracy of the property listing data and information, or as to the accuracy of any of the Images, set forth herein.






服務條款 | 保障隱私權聲明 | 常見問題及説明 | 廣告服務 | 聯係我們
Copyright © 2026 FindHomeBoston.com; All Rights Reserved.